住まいにおいて、動線て大事ですよね。
辞書でひくと、建物の中を人が自然に動く時に通ると思われる経路を線であらわしたもの、です。
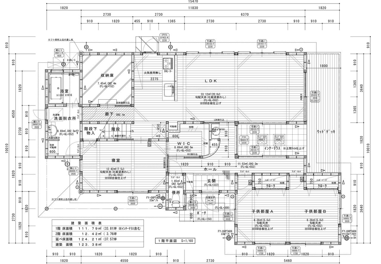
私がこの間取りにした一番の要因は動線です。
毎日の生活パターンを出来るだけ細かく思い浮かべながら、考え続けました。
まず赤線のように、『ただいま~』と入った玄関ホール脇にWICを設けました。
理由はカバンやコートなどをそのまま収納できるので、脱ぎっぱなしや置きっぱなしを防げるかなと思ったからです。そのまま寝室を通り、洗面室で手洗いうがいをして、必要であれば着替えをして、 きれいな部屋着でリビングに行くという一連の流れを意識すると、この間取りになりました。
この流れなら、玄関開けたら2分でお風呂 も夢じゃありません♪
家事動線はおもに緑線になると思います。
ウッドデッキ側に洗濯物を干す場合は、洗濯機から物干しまで遠いと指摘を受けましたので解決策を模索中です。
赤線、青線、緑線、すべてをみてもらうと分かると思いますが
”家中をくるくる回ることが出来る”というのがこの家のコンセプトです。






















