ビフォーアフター 花屋+フランス料理 第4回(いよいよ墨だし) | ONODE - モノヲ、カタル

ONODE - モノヲ、カタル

こだわりの素材による、こだわりのオリジナルバッグの限定生産ブランドメーカーこだわりのモノについて語ります。

今回の ビフォーアフターは 少し大きな花やさんが あるのですが


その場所に近所の フランス料理店が 融合する というものです


ジャカジャカジャーーーン ジャカジャーーーん


まだ解体が続くなか いよいよ 墨だしが はじまります


墨だしとは 設計した 図面と同じものを 実際の現場に


図面を 書くように 本当に 墨 墨汁 を使って 床や


壁 などに しるしを つけるのです。


すみだし


これが 墨だし の 道具です  左が 墨つぼ  昔は木でできた


入れ物の 中に 綿みたいなのが 入っていて 竹で出来た すみさし


という 道具で 印を つけていました  道具も かわれば 


どんどん かわってきますね   あっ  道具の話ですが


墨だし も 道具の進化により だいぶ 楽チンに なってきました


そんで 一番 べんりに なったのが これです


れーざー


レーザー です!!    これは 水平 を みたり 直角を 出したり


床の 印を 天井に 出したり これ1つ あるだけで


へぼい職人よりは だいぶ 役立つと 思います


ホント 便利な 世の中です   水平なんかは ぼくが でっちのころは


水管 と 行って 透明のチューブの 中に水が 入っていて これで


しるしを ちょっと づつ 付けていったのに・・・  その後は


レベルというのが あって 一人が 望遠鏡のようなのをのぞき


ひとりが 定規を壁にあてて 出していました


二人でしか出来なかったのに  いまや レーザーで 一人で


ちょちょいのちょい と 楽チンに  出来ちゃいます


便利な 世の中ですねーー   そんでもって


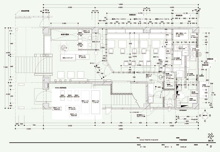
これが 今回の 図面なのです


平面図


左の前の部分が 花やさん 右が フランス料理なのです


匠は あそんでいるばかりでは なく  仕事もちゃんと


しているのです




腰痛日記

朝と 夜は やっぱ あしが いたいのだ

でも もう少し

だいぶ ましです あまり無理しないよう


がんばりまーーーーす