AQ Groupの純木造8階建て新本社ビル完成、建設費27億円でRC造の25%減
安部 道裕
ライタ-
戸建て住宅を中心とした木造建物を手掛けるAQ Group(旧アキュラホーム)の新本社ビルがさいたま市で完成した。地上8階建ての純木造ビルで、全フロアをAQ Groupが使用する。2024年4月22日に現地で見学会が開かれた。
「普及型純木造ビル」のプロトタイプになることを目指し、住宅用の一般流通木材やプレカット加工技術を最大限使って建設した。AQ Groupによれば、住宅用プレカット木材を使った純木造8階建ての耐震ビルは国内初だという。木材使用量は1695m3で、そのうち36.6%が国産材だ。
埼玉県を通る国道17号新大宮バイパス沿いに完成した、AQ Groupの新本社ビル。JR大宮駅からバスで約10分の場所に立つ。この地域で最も高い建物の1つ(写真:AQ Group)
[画像のクリックで拡大表示]
夜間に新本社ビルを見た様子。ガラスのファサードから木造組子の耐力壁が見える(写真:安部 道裕)
[画像のクリックで拡大表示]
AQ Groupは埼玉県で創業した会社である。東京から地元に戻ってきた。24年4月まで本社を置いていた都内の新宿住友ビルから、同年5月1日に新本社ビルへ引っ越し済みだ。
新本社ビルの着工は22年8月で、24年3月に竣工している。延べ面積は6076.52m2。高さは約31m。消防法上の高層建築物に当たらない範囲で、最高の高さを目指した。
建築設計は野沢正光建築工房(東京・世田谷)、構造設計は24年3月に東京大学大学院を退職した稲山正弘氏が主宰する設計事務所ホルツストラ(東京・杉並)が手掛けた。施工は田中工務店・伊佐建設JVが担当した。
新本社ビルを普及型純木造ビルのプロトタイプとして建設したのには訳がある。AQ Groupの宮沢俊哉社長は、「コンクリートだらけの都市を森に変え、日本に木造の街並みを取り戻したい」という思いが強い。
林野庁の「令和4年度 森林・林業白書」によれば、地上2階建て以下の低層住宅は木造が8割を占める。ところが中高層建築は、住宅・非住宅ともに木造がほとんどない。宮沢社長は「中大規模建築を木造にすることは脱炭素社会に大きく貢献できる」と普及の意義を強調した。
見学会の冒頭であいさつした、AQ Groupの宮沢俊哉社長。新本社ビルやAQ Groupの取り組みを自ら紹介(写真:安部 道裕)
[画像のクリックで拡大表示]
宮沢社長は中大規模の木造ビルを普及させるには、既存の建材や今いる職人の活用が欠かせないと考えている。「全国にある住宅用プレカット工場や既存住宅用の構造材や金物の使用、そして木造軸組み工法の職人が活躍できる環境整備がポイントになる」と話す。
新本社ビルは一般流通木材や住宅用プレカット技術を使い、在来工法をベースにすることでコストダウンを図った。建設費は27億円で、坪単価は145万円。これは大手建設会社などによる先導的な木造ビルの半分程度だという。同規模の鉄筋コンクリート造ビルと比べると、建設費を約4分の3に、二酸化炭素(CO2)排出量は約半分に抑えた。
もちろん、住宅用の建材や技術をそのまま用いるだけでは、中高層の木造ビルは建てられない。「新技術の開発や耐震実験による安全性の確認と立証に、累計10億円を超える投資をしてきた」と宮沢社長は打ち明ける。純木造8階建てを実現できたのは、ホルツストラの稲山氏と共同開発した耐力壁などがあったからだ。
新本社ビルの配置図。新本社ビルの西側に展示施設を建設する予定(出所:AQ Group)
[画像のクリックで拡大表示]
1~2階の平面図。中央にコア機能を集めたセンターコア方式を採用。1~2階には吹き抜けを設けた(出所:AQ Group)
[画像のクリックで拡大表示]
3~6階の平面図(出所:AQ Group)
[画像のクリックで拡大表示]
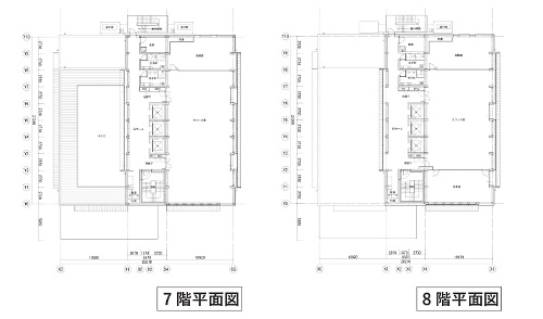
7~8階の平面図。7階西側にはテラスがあり、市内を一望できる(出所:AQ Group
AQ Groupの純木造8階建て新本社ビル完成、建設費27億円でRC造の25%減 | 日経クロステック(xTECH) (nikkei.com)






