==================
シドニー市内で最高層のオフィスビルが竣工、三菱地所らの大規模開発で環境にも配慮
小山 航
日経クロステック/日経アーキテクチュア
三菱地所は2022年11月25日、オーストラリアのシドニー市内で最高の高さとなるオフィスビルの竣工を発表した。名称は「180 ジョージストリート(George Street)」で、高さは約263mだ。大部分の階で内装工事が継続中で、終わり次第テナントの入居が進む予定だ。
「180ジョージストリート(George Street)」をシドニー湾側から見上げる。入居予定の主要なテナントである米セールスフォース・ドットコムにちなみ、別名「セールスフォースタワー(Salesforce Tower)」だ。外装に見える白い斜材はブレースの役割を持つ(写真:三菱地所)
[画像のクリックで拡大表示]
シドニー湾から市内を望む。矢印で示したのが建設中の180ジョージストリート。2022年5月ごろの状況(写真:三菱地所)
[画像のクリックで拡大表示]
三菱地所は2016年から、シドニーCBD(中心業務地区)の北端部にあるサーキュラー・キーと呼ぶ埠頭を含むエリアで敷地面積約4600m2の大規模開発事業に着手している。事業の名称は「シドニープレース(Sydney Place)」だ。現地に本社を置く不動産・建設会社のレンドリース(Lendlease)と、中国の平安不動産と共同で、オフィス、観光、文化施設など複合的な開発を進めている。
180ジョージストリートは、上述した開発エリアのシンボルとして18年に着工した。構造は鉄骨造。地上55階建てで、延べ面積約6万730m2のオフィスビルだ。英フォスター・アンド・パートナーズ(Foster + Partners)がオフィス空間の意匠設計を担当し、実施設計および施工はレンドリースが担当した。
11月24日には現地で竣工式を開き、三菱地所からは吉田淳一執行役社長、四塚雄太郎執行役常務、三菱地所アジア社から西山雄三オーストラリア支店長らが参加した。
オフィスとしての貸床面積は約5万5000m2で、基準階の床面積は1100m2ほど。クラウド型ソフトウエアの提供で業界トップクラスのセールスフォース・ドットコムや、不動産仲介業で世界的企業のジョーンズ・ラング・ラサールなどが入居予定だ。竣工時点での入居率は80%ほど。三菱地所の広報部は、「海外のオフィスビルでは、竣工後に内覧して入居を決めるケースが多いので、現時点での高い入居率に驚いている」と話す。
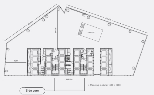
基準階平面図。コアを一辺に寄せ、広い空間を確保した(出所:三菱地所)
[画像のクリックで拡大表示]
テナント入居前のビル内部。引き渡しの段階では、階段などの造作や備品は付いていない。柱のない空間で、入居企業が自由にオフィス空間をつくれる(写真:三菱地所)
[画像のクリックで拡大表示]
テナント入居後のオフィス空間のイメージ(出所:三菱地所)
[画像のクリックで拡大表示
シドニー市内で最高層のオフィスビルが竣工、三菱地所らの大規模開発で環境にも配慮 | 日経クロステック(xTECH) (nikkei.com)





