最先端事例
街中に出現した11階建て 「純木造高層建築」の衝撃
Port Plus(ポートプラス) 大林組横浜研修所(横浜市)
池谷 和浩
ライター
街中に出現した11階建て 「純木造高層建築」の衝撃 | 日経クロステック(xTECH) (nikkei.com)
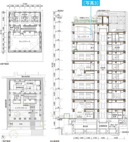
最高高さ約44.1m、11階建ての「純木造高層ビル」が、横浜市で完成した。国内ではこれまで7階建てが純木造の最高だった。免震技術を併用し、高耐久性仕様の外装を施すなど、木造が抱える弱点の克服に挑んだ。
「これ木造なの?」。道行く歩行者の多くが、この建物の前で立ち止まる。大林組が2022年4月に供用を開始した自社研修・宿泊施設、「Port Plus大林組横浜研修所」(以下、ポートプラス)だ。
建物は地下1階・地上11階建て、最高高さ約44.1m。地上部分の構造は「純木造」でできている。国内の純木造ビルとしては、21年2月に仙台市で完成した「高惣木工ビル」(地上7階建て、最高高さ約27.4m)を抜き、最も高い建物となった。
内部、外部とも、巨大な木の格子が立ち上がっているような、木造らしさが前面に出ている〔写真1~3〕。
木材使用量 1990m3
材積率 0.57m3/m2 ※木材使用量を延べ面積で割った値
〔写真1〕ついに完成した木質大空間
2層を吹き抜けとしたポートプラスの内観。フリーアドレスのオフィスとしても利用可能な大林組の研修施設だ。同社は2019年に純木造高層ビルの建設計画を公表、3年越しで完成させた(写真:吉田 誠)
[画像のクリックで拡大表示]
〔写真2〕木の格子構造が前面に
ポートプラスの外観。木造らしさを前面に出した(写真:吉田 誠)
[画像のクリックで拡大表示]
8階リラクゼーションルームの内観。香り空調も導入した(写真:吉田 誠)
[画像のクリックで拡大表示]
樹木を配し、キッチンも併設した交流空間(写真:吉田 誠)
[画像のクリックで拡大表示]
宿泊スペースの内観。睡眠の質をセンサーで測定し、表示する機能なども備える(写真:吉田 誠)
[画像のクリックで拡大表示]
〔写真3〕CLTを意匠にも活用
2層を吹き抜けとして用いた9階セミナールーム。厚さ30cmのCLTを意匠に用いた。弧を描くCLTの壁と天井には音響効果も持たせた(写真:吉田 誠)
[画像のクリックで拡大表示]
[画像のクリックで拡大表示]
断面詳細図 梁の位置で見た断面。カーテンウオール部材は複数のビスで荷重支持部材へ接合した。外部から見える木材は縁甲板で、耐火部材との間に通気層を設けた。なお、木質構造には電気が通りにくいので、屋上の避雷針に雷が落ちた際は、カーテンウオールを通じて電気が地表へ流れる設計となっている







