これまた素晴らしいウィーンのアパート
これも、お好きな方は、
アレンジしないで、「丸コピー」するべきです。
ーーーーーーーーーーーーーーーーーーーーーーーーーーーーーーーーーーーーーーーー
My Houzz:快適な「住と働」空間に改修、建築家夫妻のウィーンの自邸兼アトリエ
ウィーンを拠点に活躍する日本人女性建築家の自宅兼仕事場は、時間をかけて改修した集合住宅の1ユニット。桜の木が植えられた庭のある、職住ともに快適性を追求した住まいです。
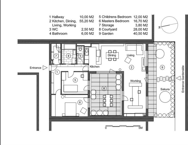
オーストリアと日本に建築設計事務所を構える一級建築士の筒井ナイルツ美矢子さんが、同じく建築家であるオーストリア人のご主人と大学生の息子さんと3人で暮らすのは、ウィーン12区の集合住宅。賃貸ながら改修可能な建物を、「より心地よく、より快適に、住みながら働ける空間」にリノベーションした「自邸兼アトリエ」だ。機能性と意匠性を兼ね備えた空間づくり、高価な名作家具と手軽にDIYできる製品を融合させるインテリア術、目にも心にも優しい照明の使い方など、建築家夫妻の設計思想や美学がいかんなく発揮された住まいは、家づくりの参考にしたいヒントに満ちている。
表玄関からリビングをつなぐ廊下の照明は、風水アドバイザーの資格も持つ筒井さんが、「陽のエネルギー」を取り込むため、「明るさ」にこだわってデザインしたもの。バスルームの扉(写真左手前)は、開き扉から、マットガラスの引き戸にリフォームして、開閉面積を縮小した。また、壁の上部に収納をつくり(写真左上)、その位置に合わせて、絵画を掛けることで、ホテルのようなおしゃれ感を演出している。
こちらもあわせて
Houzzツアー:築24年のウィーン郊外の家を日本人女性建築家がモダンにリフォーム
こちらもあわせて
Houzzツアー:築24年のウィーン郊外の家を日本人女性建築家がモダンにリフォーム
バスルームと洗濯機のフレーム、鏡、ガラスのパーティションは、夫妻で図面を作成し、特注したもの。いっぽう、シンクや引き出し、タオル掛けやベンチは〈IKEA〉で揃えている。「きちんとサイズを合わせる必要があるものは、自分たちで設計していますが、全部をオーダーメイドにするのではなく、既製品とミックスしているところがポイントです」と筒井さん。
また、洗剤などを外に出しっ放しにすることなく、「見た目を常に意識して暮らすことも、収納上手になる秘訣」だそう。
また、洗剤などを外に出しっ放しにすることなく、「見た目を常に意識して暮らすことも、収納上手になる秘訣」だそう。
洗面器の前の壁には、大きめの薄手の鏡を設置し、奥の壁面の収納シェルフも、あえて半透明の両開き扉にすることで、閉塞感のない空間をつくりだした。
白いタイル張りの空間は、とかく無機質になりがちだが、「瑠璃紺色のラグや、籐製の椅子、その上に雑誌を置いたり、壁に絵を掛けたりすることで、心地よい空間を演出しています」と筒井さん。
白いタイル張りの空間は、とかく無機質になりがちだが、「瑠璃紺色のラグや、籐製の椅子、その上に雑誌を置いたり、壁に絵を掛けたりすることで、心地よい空間を演出しています」と筒井さん。
寝室も中庭に面しており、太陽の光、そよ吹く風といった、豊かな自然の恩恵を、室内にいながら受けられる。夫妻が大切に育てている植物も、朝と夜とで違う光に照らされ、安らぎを与えてくれる。
夫妻の共通の趣味のひとつがガーデニング。裏玄関前の庭は、ウッドデッキから植栽まで、2人でデザインしてつくっている。
外庭にそびえ立つのは、桜の木。ご主人のマンフレッドさんが、ウィーンにいても筒井さんが祖国の春を感じられるように、「ここに引っ越してきた時に、苗木を買ってきて植えた」のだそう。「約10年間で、こんなに大きくなるとは驚きです」と語るマンフレッドさん。今春も、桜の花が咲き乱れ、明るく、華やいだ景色を提供してくれたことは言うまでもない。
リフォームによって誕生したLDKの大空間。ここは、夫妻が家族や友人と団欒する場だが、施主との打ち合わせの場所にもなる。「私たちの提案する住まい方や空間を、実際にご覧いただくことで、どうすれば機能的で、使いやすい空間を実現できるか、私たちなりのノウハウを見ていただくことができます」と語る筒井さん。
建築家夫妻が、人生の節目節目に、リフォームを重ねて誕生させた「自邸兼アトリエ」は、まさに2人の個性と価値観が反映された、アイデア満載の空間だ。
建築家夫妻が、人生の節目節目に、リフォームを重ねて誕生させた「自邸兼アトリエ」は、まさに2人の個性と価値観が反映された、アイデア満載の空間だ。